展厅设计、企业展厅、乡村振兴馆、廉政展厅、智慧城市体验馆、科技馆、博物馆等大中型展厅设计施工
24小时咨询电话:18710219106

LAND体验中心

LAND体验中心
项目名称:LAND体验中心(LAND Experience Center)
建筑师:Aedas
项目地点:中国 西安
项目面积:2 110㎡
项目时间:2014年
摄影:Courtesy of Aedas
LAND设计的LAND体验中心是一个交互式展览中心,位于城市主轴线和雁展路的交汇处。建筑空间带给人身临其境的感觉,展现了开发商LAND对于西安市及其发展战略的愿景。体验中心对公众开放,需要时可以用作公司的销售和市场中心。

LAND体验中心

LAND体验中心
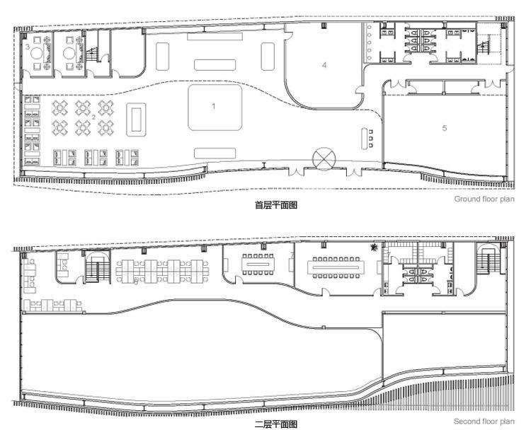
项目包括一个展厅、一间多功能室、行政办公室和一个独立的展览侧楼。雕塑式的建筑形态来源于当地波状起伏的地形,反映了西安二元性和动态美。体验中心妥善协调了一系列活动空间,为特色项目单元提供了丰富的感官体验。
独特的场馆设计还保证了以后的灵活性再利用。以特别设计的钢结构基底为基础,它成为一个轻便的装备,以后将在临近的场地上重新安置。

LAND体验中心

LAND体验中心

Copyright © 亮视线 版权所有 京ICP备11018362号-1